Beispielplanungen aus dem Tischer-/Schreinerhandwerk
| Planungsbeispiel 2: | Innenausbaubetrieb mit bis zu sechs handwerklichen Mitarbeitern (s. auch Planungsbeispiel 1:) |
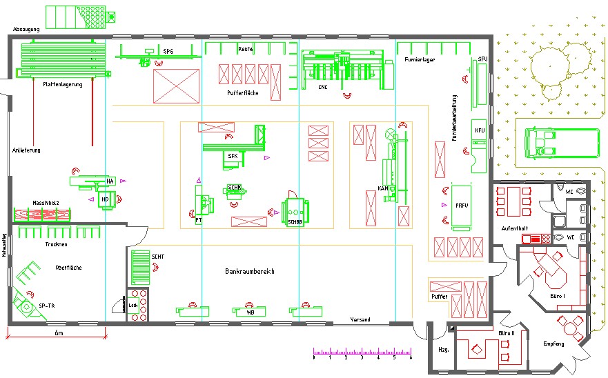
| Fertigungsprogramm: | Innenausbau, Möbelbau, etc. |
| Gebäude: |
Erste Planungsstufe: Fertigung: 30 x 18m = 540 qm, Büro, Verwaltung, Heizung und Mitarbeiterbereich: ca. 82 qm Erweiterungsfläche: Vorkaufsrecht auf Nachbargrundstück (hier nicht geplant) |
| Planungslayout: |
|